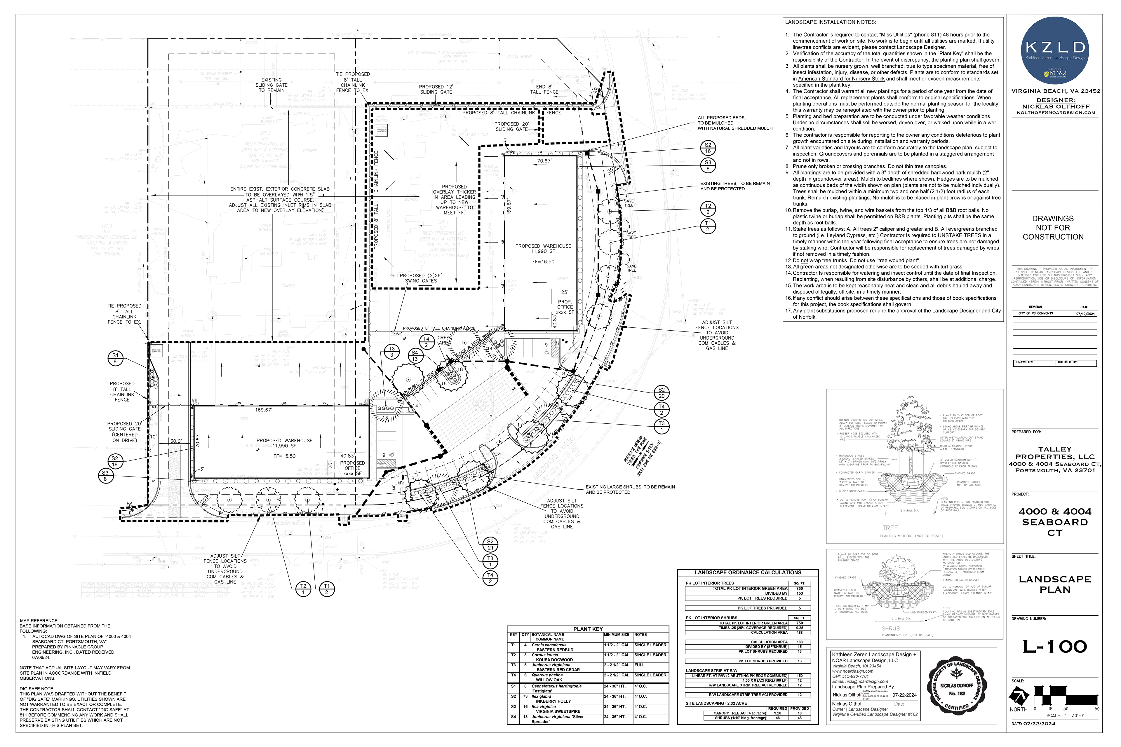
This is a commercial project, in collaboration with Pinnacle Group Engineering, Inc. Each municipal has unique landscape ordinance codes for site plan review. This Landscape Plan illustrates the minimum city landscape requirements, under the current project scope.
Back to Top