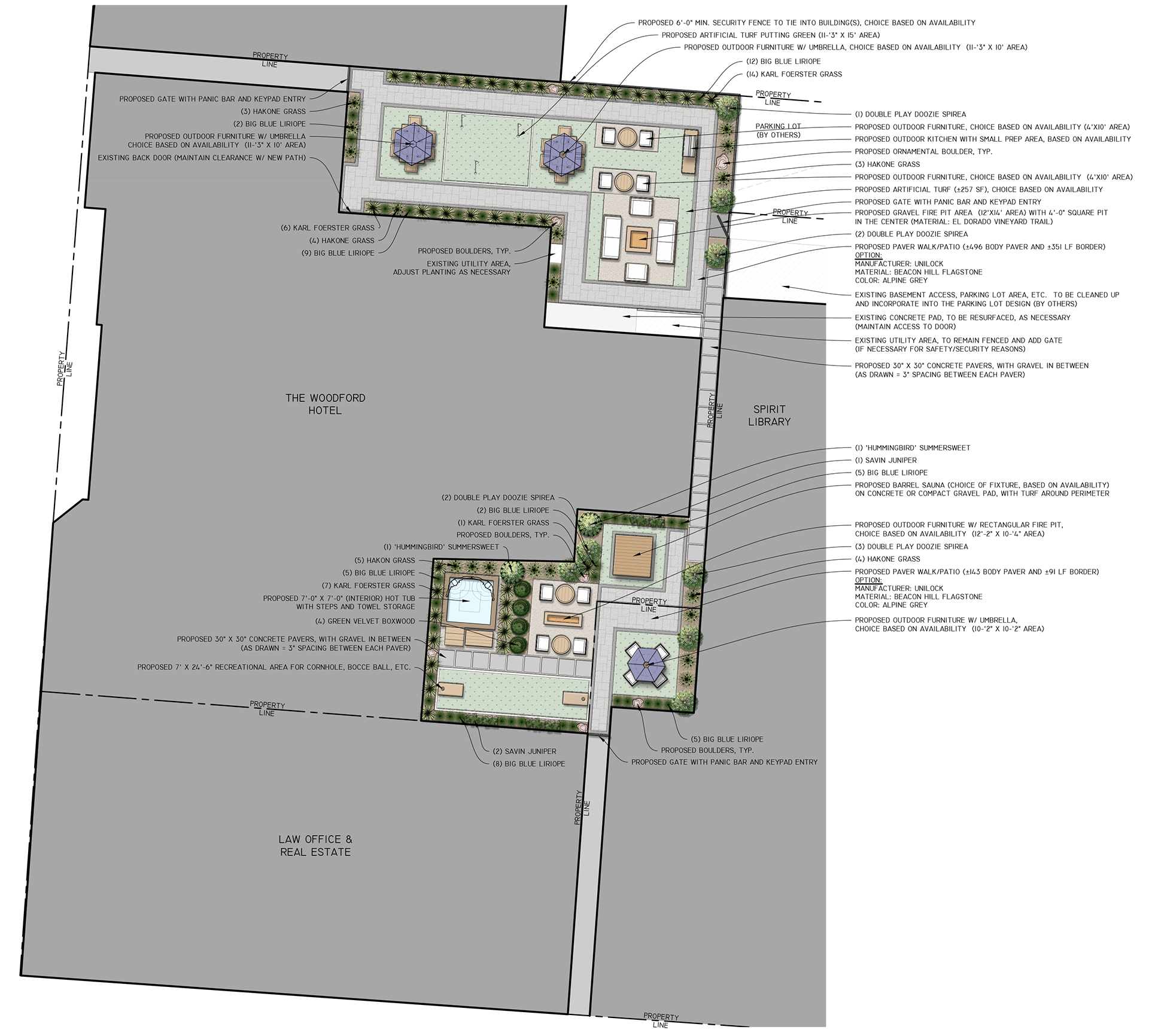
The historic Woodford Hotel is ideally situated near some of the world’s most renowned distilleries. Just a short drive away, you’ll find iconic names such as Woodford Reserve, Wild Turkey, Four Roses, and Buffalo Trace, offering the opportunity to embark on an unforgettable bourbon trail. We helped the owner re-design existing courtyard spaces to accommodate guests and desired amenities (ie. hot tub, barrel sauna, fire pit, outdoor kitchen, etc.).
Back to Top